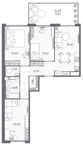
3-комнатные квартиры в ЖК PLUS Пулковский, Санкт - Петербург по Военной ипотеке

Чистовая
г. Санкт-Петербург, Московский район, Пулковское шоссе, участок 24 (северо-западнее пересечения с Волхонским шоссе)
  • Срок сдачи
    IV квартал 2025
  • Площадь
    21,99 - 25,72 м2
  • Инвестиционная привлекательность
    13 963 808 - 14 260 547 i
Скидка поВоенке: Бесплатное сопровождение и одобрение