4-комнатные квартиры в ЖК КИНОКВАРТАЛ, Королев по Военной ипотеке

Без отделки
Московская область, Королёв, микрорайон Первомайский, Солнечная улица
  • Срок сдачи
    II квартал 2026
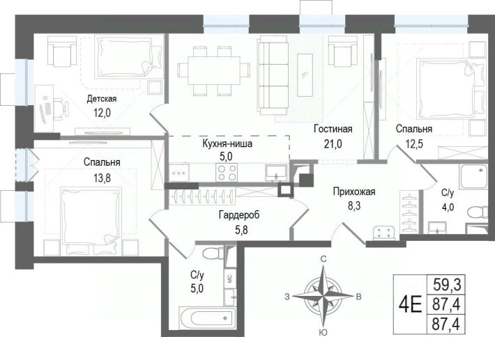
  • Площадь
    86,2 - 88,1 м2
  • Инвестиционная привлекательность
    11 869 488 - 15 842 226 i
Скидка поВоенке: Бесплатное сопровождение и одобрение
Современные 4-комнатные квартиры в Московская область, Королёв, микрорайон Первомайский, Солнечная улица — отличное решение для участников военной ипотеки. Сдача дома запланирована на II квартал 2026. Площадь квартир варьируется от 86,2 - 88,1 м2, благодаря чему вы сможете подобрать вариант, идеально соответствующий именно вашим потребностям. Высокая инвестиционная привлекательность (11 869 488 - 15 842 226 i) делает покупку выгодным вложением в будущее.