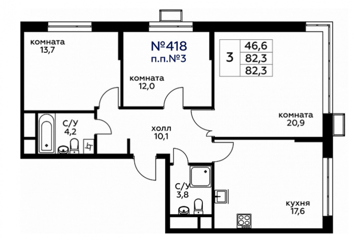
3-комнатные квартиры в ЖК Вереск, Москва по Военной ипотеке

Без отделки
Москва, 3-я Хорошёвская ул., вл19с3к2
  • м. Хорошёво
  • Срок сдачи
    II квартал 2023
  • Площадь
    77,1 - 124,5 м2
  • Инвестиционная привлекательность
    26 600 000 - 41 600 000 i
Архивный объект
Современные 3-комнатные квартиры в Москва, 3-я Хорошёвская ул., вл19с3к2 — отличное решение для участников военной ипотеки. Сдача дома запланирована на II квартал 2023. Площадь квартир варьируется от 77,1 - 124,5 м2, благодаря чему вы сможете подобрать вариант, идеально соответствующий именно вашим потребностям. Высокая инвестиционная привлекательность (26 600 000 - 41 600 000 i) делает покупку выгодным вложением в будущее.