2-комнатные квартиры в ЖК Автограф в центре, Санкт - Петербург по Военной ипотеке

Чистовая
Лиговский пр., д.236
  • Срок сдачи
    введен
  • Площадь
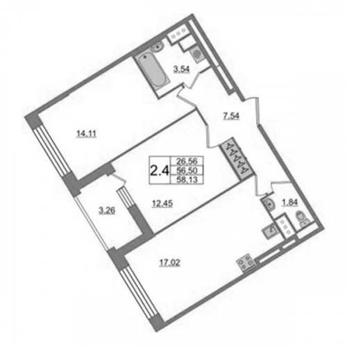
    52,7 - 70,4 м2
  • Инвестиционная привлекательность
    14 750 000 - 18 050 000 i
Скидка поВоенке: Бесплатное сопровождение и одобрение
Современные 2-комнатные квартиры в Лиговский пр., д.236 — отличное решение для участников военной ипотеки. Площадь квартир варьируется от 52,7 - 70,4 м2, благодаря чему вы сможете подобрать вариант, идеально соответствующий именно вашим потребностям. Высокая инвестиционная привлекательность (14 750 000 - 18 050 000 i) делает покупку выгодным вложением в будущее.