3-комнатные квартиры в ЖК Sky Park (Скай Парк), Ростов-на-Дону по Военной ипотеке

Без отделки
г. Ростов-на-Дону, ул. Нансена, д. 83
  • Срок сдачи
    IV квартал 2022
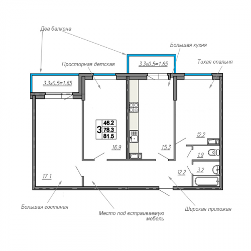
  • Площадь
    81,45 м2
  • Инвестиционная привлекательность
    8 000 000 i
Архивный объект
Современные 3-комнатные квартиры в г. Ростов-на-Дону, ул. Нансена, д. 83 — отличное решение для участников военной ипотеки. Сдача дома запланирована на IV квартал 2022. Площадь квартир варьируется от 81,45 м2, благодаря чему вы сможете подобрать вариант, идеально соответствующий именно вашим потребностям. Высокая инвестиционная привлекательность (8 000 000 i) делает покупку выгодным вложением в будущее.