3-комнатные квартиры в ЖК Северная Долина, Санкт-Петербург по Военной ипотеке

Чистовая
г. Санкт-Петербург, пос. Парголово, ул. Михаила Дудина / пр. Энгельса
  • Срок сдачи
    II квартал 2024
  • Площадь
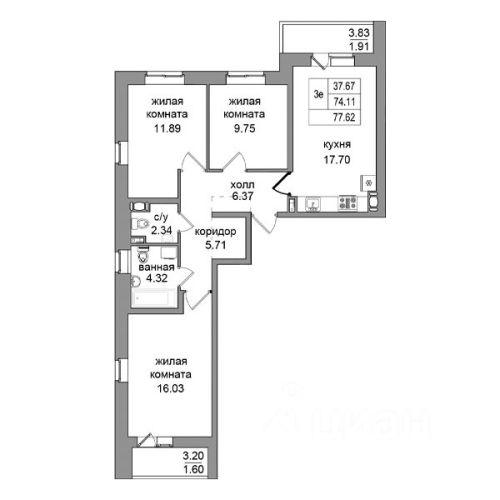
    49,19 - 75,27 м2
  • Инвестиционная привлекательность
    9 800 000 - 13 100 000 i
Скидка поВоенке: Бесплатное сопровождение и одобрение
Современные 3-комнатные квартиры в г. Санкт-Петербург, пос. Парголово, ул. Михаила Дудина / пр. Энгельса — отличное решение для участников военной ипотеки. Сдача дома запланирована на II квартал 2024. Площадь квартир варьируется от 49,19 - 75,27 м2, благодаря чему вы сможете подобрать вариант, идеально соответствующий именно вашим потребностям. Высокая инвестиционная привлекательность (9 800 000 - 13 100 000 i) делает покупку выгодным вложением в будущее.